Skip to main navigation
Skip to main content
Skip to page footer
Wohnungsangebote
Die WGS
Mitgliedschaft
Mieterservice und Informationen
News
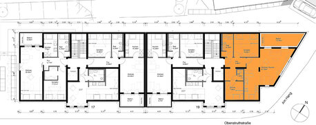
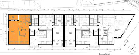
Dachgeschoss
Die Wohnungen im Dachgeschoss
Wohnung 19
Wohnung 20
Wohnung 21
Wohnung 22
Wohnung 23
Wohnung 24
Freie Wohnungen
Beispiele aus unserem Wohnungsbestand
Neubau Wohnanlage Heeserstraße
"Wohnungsklassiker" für alle Altersgruppen
Wohnanlage mit Blick aufs Krönchen
Moderne Wohnanlage am Wellersberg
Erdgeschoss
1. / 2. Obergeschoss
Dachgeschoss
(current)
Wohnungstypen
Ansichten
Lageplan
Ausstattung
Altbauwohnungen im Industriedesign
Die WGS in Südwestfalen