Skip to main navigation Skip to main content Skip to page footer

Dachgeschoss – Wohnung 80

Die im Dachgeschoss rechts gelegene Wohnung befindet sich im Objekt In der Flur 11.

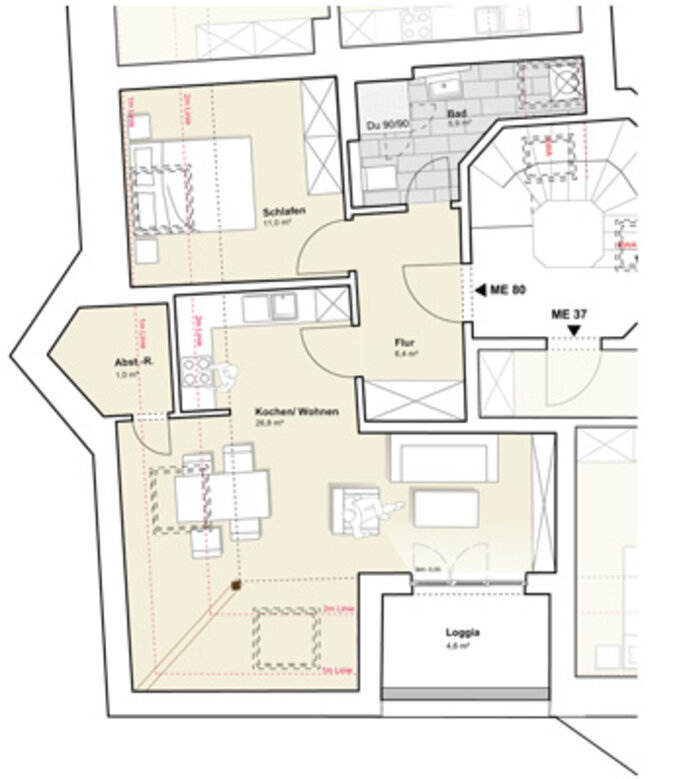
Die kleine, gemütliche Wohnung verfügt neben einem offen gestalteten Wohn-/Ess-/Kochbereich (ohne EBK!) über ein weiteres Zimmer, einen kleinen Abstellraum, eine Loggia sowie über ein Bad. Außerdem gehört zu der Wohnung ein eigener Kellerraum. Von dem großzügigen Wohn-/Essbereich gelangt man auf die schöne Loggia. Das modern geflieste Bad mit Fenster ist mit einer bodengleichen Dusche und einem Anschluss für eine Waschmaschine ausgestattet.

Lage der WE:DG rechts 
   
Kochen/Essen/Wohnen:26,80 m² 
Schlafen:11,00 m² 
Flur:6,40 m² 
Bad:5,90 m² 
Abstellraum:1,00 m² 
Loggia:
(wird zur Hälfte angerechnet)
4,60 m² 
   
Anrechenbare Wohnfläche 
(gerundet):
54,00 m² 
 
 
 
 
Wohnungsexposé als PDF Download


 Sprechen Sie uns an

Änderungen vorbehalten.